Продаж танхаусу по пр.Козацький (№ 22-404-018)
Ціна: 45 000 $

Характеристики
| Ціна: | 45 000 $ |
|---|---|
| № об'єкта: | 22-404-018 |
| Тип: | таунхаус |
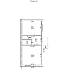
| Поверхів: | 2 |
| Спалень: | 3 |
| Площа будинку: | 95 м2 |
| Ділянка: | 2 сот |
Адреса: Сумська, Суми, Козацький
Продаж танхаусу по пр.Козацький
45 000$ торг
пропонуй СВОЮ ЦІНУ!
Два поверхи
Цегляний будинок
Загальна площа: 95 м²
Кількість кімнат: 3
Стан від забудовника
Всі комунікації підведено
Площа ділянки: 2 сотки
Гарне місцерозташування
З приводу перегляду квартири та додаткової інформації звертайтесь за телефоном чи в особисті повідомлення











