Продаж будинку вул. 2-а Набережна р.Стрілки (№ 22-437-574)
Ціна: 45 800 $

Адреса: 2-А Набережна Р.стрі вул., Суми, Сумська, Зарічний
Характеристики
| Ціна: | 45 800 $ |
|---|---|
| № об'єкта: | 22-437-574 |
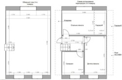
| Поверхів: | 2 |
| Площа будинку: | 140 м2 |
| Ділянка: | 12 сот |
Опис
ЦІНУ ЗНИЖЕНО!
Продаж будинку вул. 2-а Набережна р.Стрілки
45 800 $ торг
пропонуй СВОЮ ЦІНУ!
Два поверхи
Загальна площа: 140 м²
4 кімнати
Стан від забудовника
Всі комунікації підведені
Площа ділянки: 12 соток
Будинок утеплений
Чудове місцерозташування











