Продаж двох окремих комерційних приміщень у ЖК Зарічний, вул. Харківська (№ 24-101-668)
Ціна: 33 000 $

Адреса: Харківська вул., Суми, Сумська, Зарічний
Характеристики
| Ціна: | 33 000 $ |
|---|---|
| № об'єкта: | 24-101-668 |
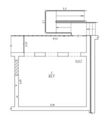
| Поверх: | 1 / 12 |
| Площа: | 57 м2 |
Опис
Продаж двох окремих комерційних приміщень у ЖК Зарічний, вул. Харківська
Приміщення 1 – 57 м² (33 000 $)
Приміщення 2 – 88 м² (43 000 $)
Поверх: 1/12
Центральна частина міста, вигідне місцерозташування
Всі комунікації є в будинку
Опалення автономне
Окремий вхід
Панорамні пластикові вікна
Підійде під будь-який бізнес чи ідею
Документи готові до продажу











