Продаж 1 кімнатної квартири вул. Хворостянка (вул. Праці) (№ 212-732-356)

Ціна: 20 500 $
Характеристики
| Ціна: | 20 500 $ |
|---|---|
| № об'єкта: | 212-732-356 |
| Кімнат: | 1 |
| Поверх: | 2 / 7 |
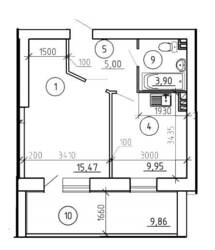
| Площа: | 44 / 15.5 / 10 м2 |
| Санвузол: | 1 |
| Балкон: | лоджія |
| Додатково: | новобудова |
Адреса: Сумська, Суми, Ковпаковський, Праці вул.
Продаж 1 кімнатної квартири вул. Хворостянка (вул. Праці)
20 500 $ торг
пропонуй СВОЮ ЦІНУ!
Площа: 44 м²/15.5м²/10 м²
2/7 поверх
Цегляний будинок
Автономне опалення
Ремонт від забудовника
Підлога з підігрівом по всій квартирі
Стіни поштукатурені
Виконано перепланування, збільшена кімната
Простора лоджія 10м²
З приводу перегляду квартири та додаткової інформації звертайтесь за телефоном чи в особисті повідомлення




