Продаж 1-кімнатної квартири пр. М. Лушпи, корпус 6 (№ 212-768-926)

Ціна: 33 000 $
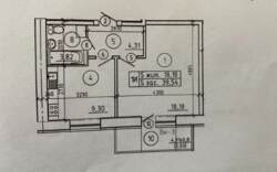
Характеристики
| Ціна: | 33 000 $ |
|---|---|
| № об'єкта: | 212-768-926 |
| Кімнат: | 1 |
| Поверх: | 6 / 11 |
| Площа: | 39.54 / 18.18 / 9.3 м2 |
| Санвузол: | 1 роздільний |
| Балкон: | балкон |
| Додатково: | новобудова |
Адреса: Сумська, Суми, Зарічний, Лушпи Михайла Прс.
Новобудова з А/О
33 000$ торг
пропонуй СВОЮ ЦІНУ!
6/11 поверх
Площа: 39,54 м²/ 18,18 м²/ 9,3 м²
Цегляний будинок
Автономне опалення
Ремонт від забудовника
Переуступка
Будинок введено в експлуатацію!
З приводу перегляду квартири та додаткової інформації звертайтесь за телефоном чи в особисті повідомлення.





