Продаж 1-кімнатної квартири пр.Свободи (Прокоф’єва) (№ 212-941-358)

Ціна: 17 500 $
Характеристики
| Ціна: | 17 500 $ |
|---|---|
| № об'єкта: | 212-941-358 |
| Кімнат: | 1 |
| Поверх: | 1 / 9 |
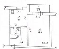
| Площа: | 36,20 / 17 / 8 м2 |
Адреса: Сумська, Суми, Зарічний, Прокоф`єва вул.
Продаж 1-кімнатної квартири пр.Свободи (Прокоф’єва)
17 500$ торг
пропонуй СВОЮ ЦІНУ!
1/9 поверх
Площа: 36.20 м²/17 м²/8 м²
Квартира під ремонт
Зручне місцерозташування
Перегляд у зручний час!










