Продаж 2-кімнатної квартири пр-п.Лушпи,корпус 24/2 (№ 213-005-411)

Ціна: 24 000 $
Характеристики
| Ціна: | 24 000 $ |
|---|---|
| № об'єкта: | 213-005-411 |
| Кімнат: | 2 |
| Поверх: | 13 / 14 |
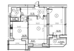
| Площа: | 68 / 35 / 17 м2 |
| Балкон: | лоджія |
| Додатково: | новобудова |
Адреса: Сумська, Суми, Зарічний, Лушпи Михайла Прс.
Продаж 2-кімнатної квартири пр-п.Лушпи,корпус 24/2
НОВОБУДОВА.ЖК Еспланада
13/14 поверх
Загальна площа: 68 м² Площа кухні: 17 м²
Цегляний будинок
Стан від забудовника
Котельня на будинок
Чудова локація.Все поруч



